Oberdorf Stetten

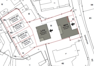
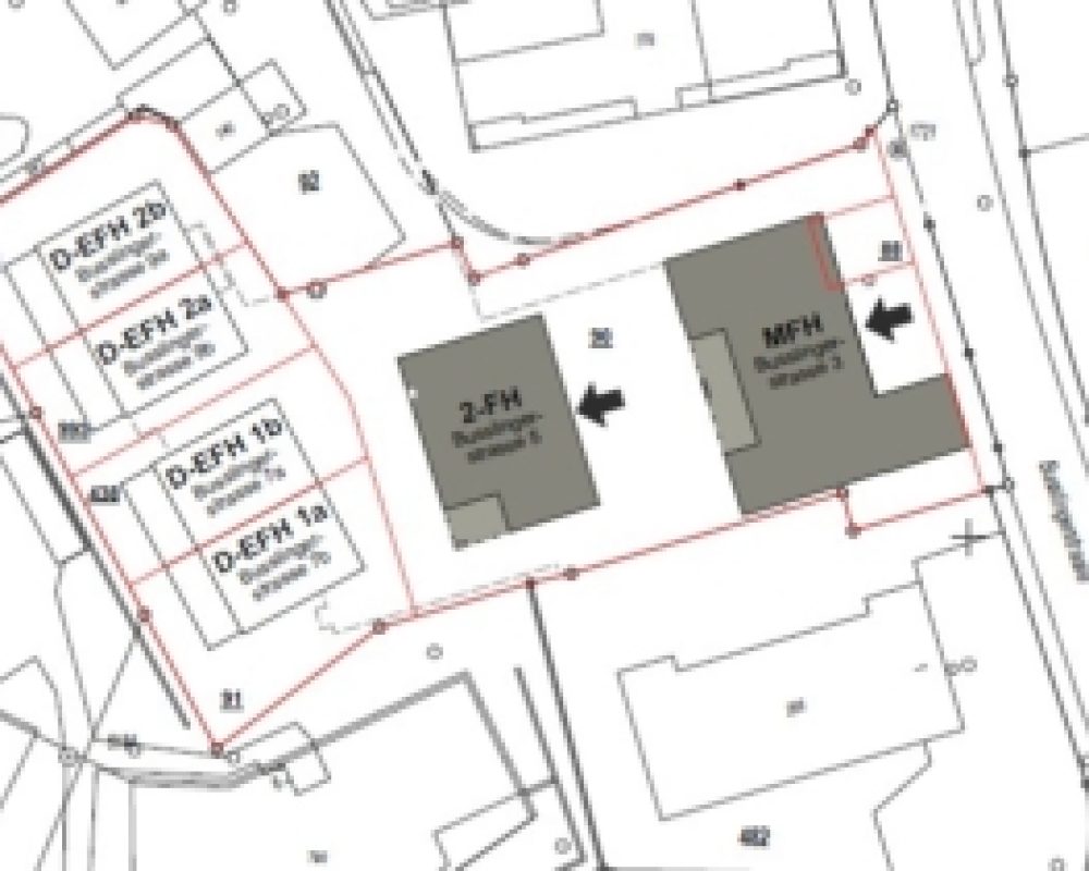
Die KOCH AG baut: Ein Zweifamilienhaus mit zwei 4.5-Zimmer-Wohnungen, zwei Doppeleinfamilienhäuser mit je 6.5-Zimmern und ein Mehrfamilienhaus mit 2.5- bis 4.5-Zimmer-Wohnungen.

Wohnen und Leben im Oberdorf Stetten.

Die KOCH AG baut:

  • Ein Zweifamilienhaus mit zwei 4.5-Zimmer-Wohnungen
  • Zwei Doppeleinfamilienhäuser mit je 6.5-Zimmern
  • Ein Mehrfamilienhaus mit 2.5- bis 4.5-Zimmer-Wohnungen

Stetten, mein Zuhause.

Eingebettet zwischen dem Rohrdorferberg und dem Erholungsgebiet der Reusslandschaft befindet sich die Gemeinde Setten. Stetten hat seinen ländlichen Charakter bewahrt. Heute wohnen ca. 2’500 Personen in Stetten. Der Steuerfuss der Gemeinde (2025) liegt bei 105 %.

Das Schulangebot in Stetten umfasst den Kindergarten, die Primar-, Sekundar- und Realschule. Den Bezirksschulunterricht besuchen die Stetter Schülerinnen und Schüler in Mellingen.

Stetten hat gute öffentliche Verkehrsverbindungen. Die Busse fahren von Wohlen AG via Stetten nach Mellingen und von Bremgarten via Stetten nach Baden und retour. Die nahen Autobahnanschlüsse Baden-West, Mägenwil und Birmensdorf ermöglichen kurze Auto-Fahrzeiten nach Zürich, Basel und Bern.

Projektübersicht

Nr Geschoss Zimmer NWF (m²) Kaufpreis (CHF)
MFH A - A1EG4.5126 verkauft
MFH A - A2OG3.5107verkauft
MFH A - A3OG2.574verkauft
MFH A - A4DG3.5100verkauft
MFH B - B1EG4.5114verkauft
MFH B - B2DG4.5108925'000
DEFH - 1a-6.51751'340'000
DEFH - 1b-6.51751'330'000
DEFH - 2a-6.51751'360'000
DEFH - 2b- 6.5175verkauft

Impressionen

Das Immobilien-Team

Stefan

Köchli

Irmgard

Trümpy

100 Jahre KOCH AG – wir feiern Jubiläum!

Am Samstag, 30. Mai 2026 öffnet die KOCH AG ihre Türen. Entdecke spannende Einblicke in unsere Arbeit und feiere mit uns 100 Jahre KOCH!

  • 10.00 – 16.00 Uhr
  • Büelisackerstrasse 3, 5619 Büttikon
  • Keine Anmeldung nötig – komm einfach vorbei!


Mehr zum Jubiläumsjahr und zum Event: